NHÀ LÔ PHỐ 5x27M – KẾT HỢP KINH DOANH NHA KHOA
Địa điểm : Hải Dương
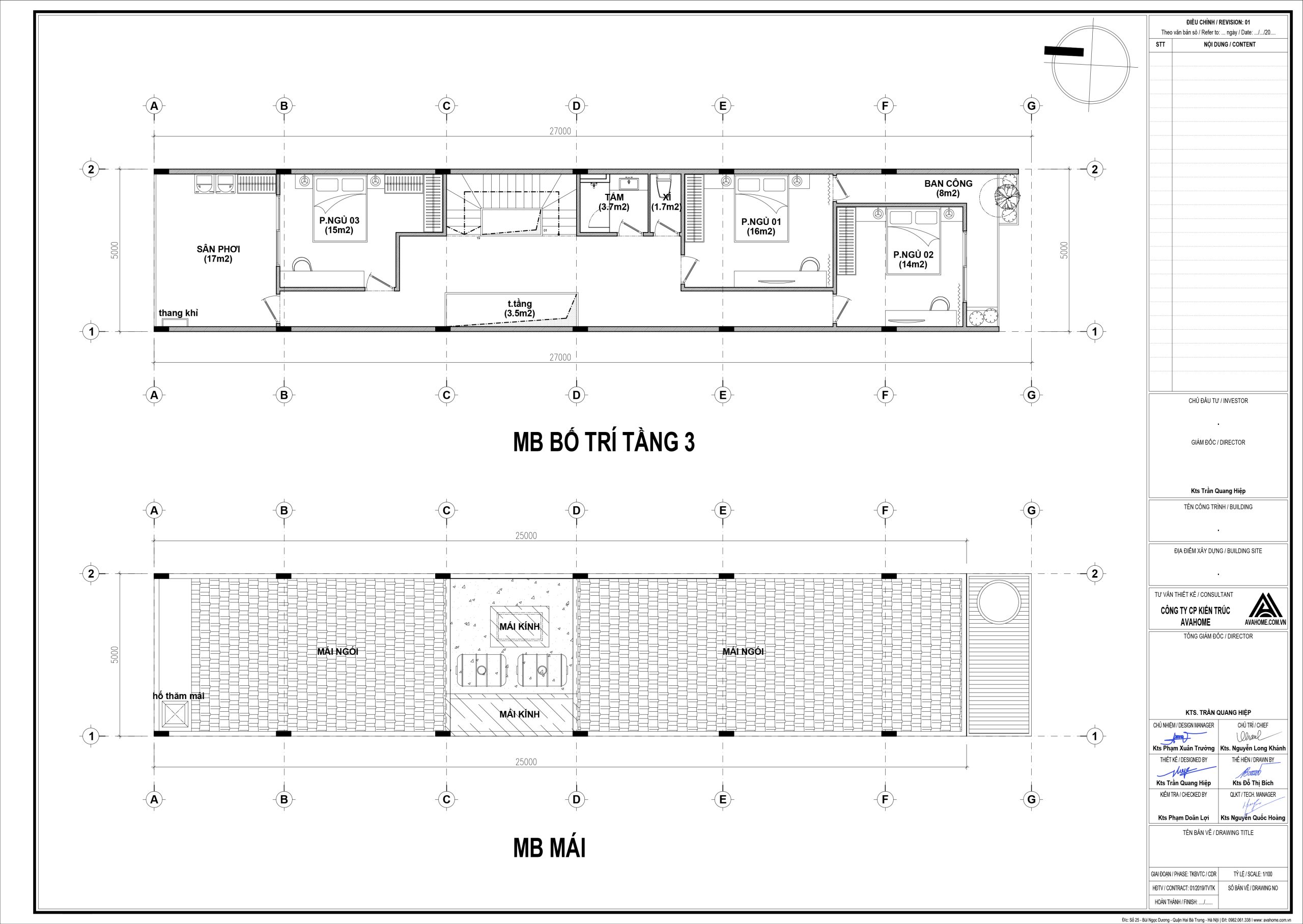
Diện tích đất : 135m2
Diện tích xây dựng : 5m x 27m
Tổn diện tích sàn: 400m2
Ấn vào ảnh để hiển thị rõ nét hơn
Khách hàng:
Chị Lan Anh
Hoàn thành:
10-2022
Vị trí:
Hải Dương
Kiến trúc:
Nhà Hiện Đại

