NHÀ Ở QUÊ GIÁ RẺ VỚI KINH PHÍ 900TR
Địa điểm : Tam Nông- Phú Thọ
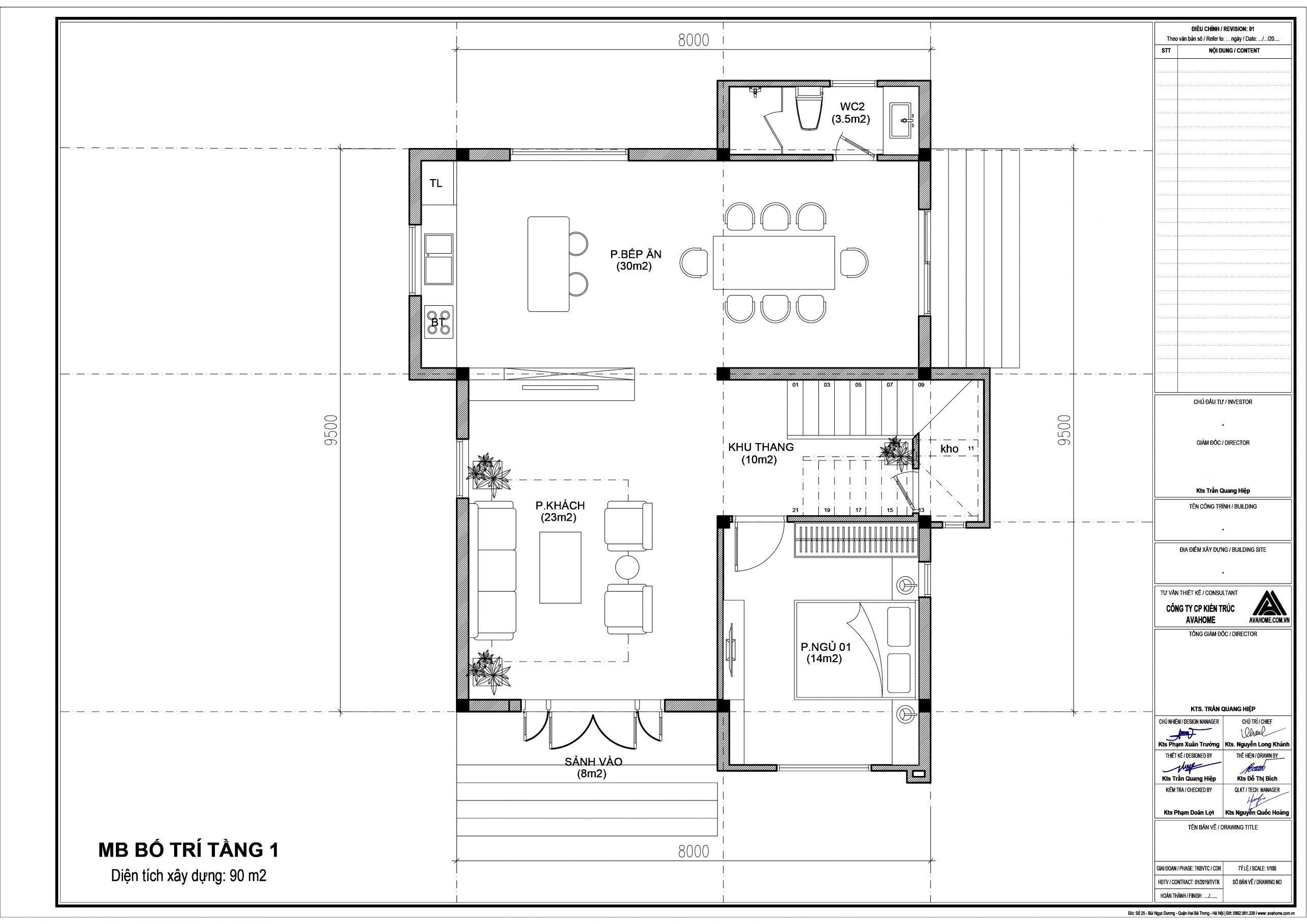
Diện tích đất : 160m2
Diện tích xây dựng : 8m x 10m
Tổn diện tích sàn: 186m2
Ấn vào ảnh để hiển thị rõ nét hơn
Khách hàng:
Chị Phương
Hoàn thành:
3-2022
Vị trí:
Phú Thọ
Kiến trúc:
Hiện Đại

